Një skandal ka dalë në dritë për nënkryetarin e Bashkisë së Tiranës, Blendi Sulaj, lidhur me një objekt banimi që ai ka në pronësi në zonën e Mjull Bathores.

Sipas dokumenteve thuhet se banesa është ndërtuar duke devijuar nga kushtet e lejes së miratuar dhe jashtë kufijve të pronës së regjistruar në kadastër.
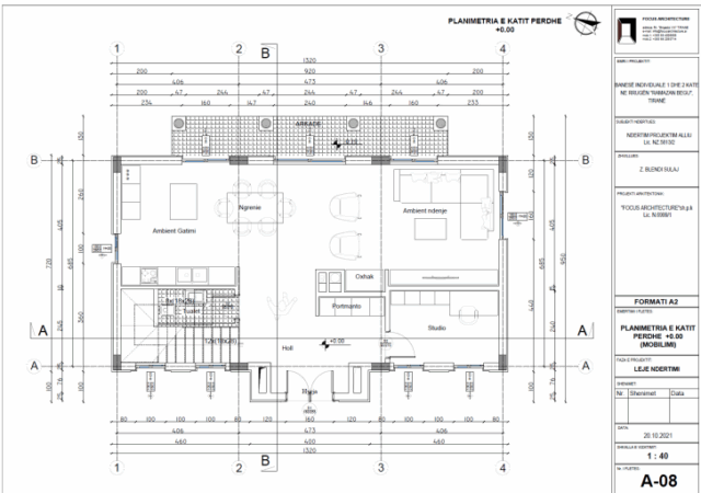
Objekti ndodhet në rrugën “Ramazan Bregu”, Mjull Bathore, njësia strukturore FA/2 Tiranë në pronësi të Blendi Sulajt dhe me zhvillues po Blendi Sulajn dhe subjekt ndërtues shoqëria “Ndërtim Projektim Alliu Sh.P.K.”
Sipas dokumenteve të mbërritura në CNA, detajet në lidhje me devijimet nga leja e ndërtimit janë bërë në pjesët e renditura si më poshtë.
Devijimi 1
Në zonën jugore të truallit, muri rrethues është ndërtuar përtej kufijve të pronës së regjistruar në kadastër. Si rrjedhojë, ky devijim sjell ndërtim pa leje, shkelje të kufijve të pronës, mospërputhje me koordinatat e kufirit kadastral dhe cenim të distancave të detyrueshme sipas lejes së miratuar.
Devijimi 2
Pishina e jashtme është e ndërtuar pjesërisht jashtë pronës. Pishina e realizuar në pjesën jugore është ndërtuar pjesërisht jashtë kufijve ligjorë të truallit, duke krijuar shkelje të sipërfaqes private të palëve të tjera dhe uzurpim të saj. Njëkohësisht pishina nuk është realizuar sipas projektit të miratuar. Ndërtimi i saj konsiston në ndërtim pa leje dhe jashtë kufirit të pronës, nuk përputhet me planin e pishinës dhe sistemimit të miratuar.
Devijimi 3
Muri rrethues në pjesën perëndimore shkelje të trupit të rrugës të miratuar nga Bashkia e Tiranës
Sipas dokumenteve të siguruara nga CNA, nënvizohet se në pjesën perëndimore, muri rrethues ka shkelur hapësirën publike të rrugës sipas planit të miratuar pranë Drejtorisë së GIS-Kadastrës, Bashkia Tiranë, duke rezultuar në ndërtim pa leje jashtë kushteve të miratuara të lejes së ndërtimit dhe duke uzurpuar hapësirën publike. Gjithashtu, në lejen e miratuar janë parashikuar portat e aksesit në murin rrethues sipas plan-sistemimit të miratuar, por të cilat nuk janë respektuar.
Në këtë rast kemi ndërtim pa leje, shkelje të vijës së ndërtimit dhe shkelje të distancave të miratuara nga trupi i rrugës në lejen e miratuar dhe zënie e shfrytëzim të hapësirave të parashikuara për qarkullim publik.


Devijimi 4
Muri rrethues nuk ka respektuar formën e miratuar dhe ka ndryshime në lartësi dhe material.
Muri perimetral është realizuar si mur i lartë dhe i mbyllur (me bllok/muraturë), ndërkohë që leja e miratuar parashikon: kangjella metalike, lartësi të reduktuar, transparencë vizuale. Ky ndryshim përbën devijim të dukshëm nga leja e ndërtimit.


Plani i sistemimit ka shkelje të lejes së miratuar
Elementët e sistemimit (shëtitore, shkallë, rampa, gjelbërim, ndarje në nivelet e terrenit) nuk përputhen me planin e miratuar, duke sjellë ndërtim pa leje, ndryshim të kuotave të terrenit, modifikim të formës së oborrit dhe hapësirave funksionale.


Kati përdhe, ndërtim jashtë lejes
Në katin përdhe janë realizuar punime, të cilat nuk figurojnë në projektin e miratuar, pasi një pjesë e sipërfaqes së tij është lënë e zbuluar dhe nuk është sipas projektit të miratuar.
Edhe këtu kemi të bëjmë me ndërtim pa leje, devijim nga projekti i miratuar dhe ndryshim të formës, funksionit dhe organizimit të objektit jashtë lejes së miratuar.


Ndryshime në fasadë
Fasadat e objektit kanë ndryshuar nga projekti i miratuar, përfshirë modifikimin e hapjeve të dritareve dhe ndryshimin e plotë të fasadave të katit përdhe, ndryshim të rifiniturave, materiale fasadë, ndryshim të ngjyrës.
Të gjitha këto fakte tregojnë shkeljet e kryera nga Blendi Sulaj, i cili ka ndërtuar objektin e tij duke shkelur kufirin e lejes së ndërtimit duke abuzuar dhe duke zaptuar hapësirat publike.



Pas fakteve që kanë mbërritur në CNA, readaksia raporton kanë pyetur edhe zotin Blendi Sulaj. Në reagimin për CNA, zoti Sulaj u shpreh se:
“Unë s’kam asnjë koment për këtë. Kam marrë certifikatë pronësie, leje ndërtimi dhe të gjitha që kur u ndërtua në vitin 2019. Për çfarëdolloj rasti dhe çfarëdolloj gjëje që të kenë të gjithë njerëzit të futen dhe të bëjnë kontrollet për mua, të vijnë, t’i shikojnë e t’i bëjnë në çfarëdolloj momenti. Jam i qetë për këtë gjë. Pra, unë kam certifikatë pronësie, kam rreshtat e objekteve e të gjitha të tjerat. Në të gjitha rastet kushdo që të ketë nevojë për verifikim në lidhje me mua të vijnë ta bëjnë kur të jetë. Unë vij nga fusha e biznesit, nuk kam marrë ndonjë leje ndërtimi në emër të kompanisë. Ajo që thoni ju është 150 metra ndërtim, të vijnë t’i vënë metrin dhe nëse ka një metër më shumë se kaq të vijnë të bëjnë çfarë të duan, kushdo. Jam shumë i kujdesshëm në këto gjëra. Është bërë që në vitin 2019, ka mbaruar në vitin 2021, kështu që janë 5 vite më parë”.
Ndërkohë që zoti Sulaj pretendon se nuk ka bërë shkelje ne kemi këtë raport që tregon shkeljet që janë kryer të cilat i kemi renditur më lart.














